Żywiec - Lokal na wynajem - PRK-LW-675

Powierzchnia: 155 m2

49,68 zł / m2 7 700 zł
Szczegóły nieruchomości
Symbol PRK-LW-675
Przedmiot Lokal
Rodzaj lokalu Jednopoziomowy
Rodzaj budynku Obiekt handlowo-usługowo-biurowy
Standard
Stan lokalu Po remoncie
Powierzchnia 155 m2
Usytuowanie Dwustronne
Piętro Parter
Ilość pięter 2
Wysokość pomieszczeń 2.7 m
Docieplenie Styropian
Możliwość parkowania Tak
Własny parking Tak
Opłaty za miejsce parkingowe Brak
Położenie lokalu Spokojna ulica
Rynek Wtórny
Stan prawny Własność
Status własności Firma
Ogrzewanie Własne dla budynku
Instalacje Nowe
Internet Tak
Okna Nowe PCV
Wejście Od ulicy
Ilość wejść 2
Dozór budynku Tak - jest
Recepcja Tak
Dojazd Asfalt
Przeznaczenie lokalu Biurowy, handlowo-usługowy, usługowy
Ogrodzenie Tak
Lokalizacja Żywiec
Powiat żywiecki
Kraj Polska
Województwo Śląskie
Rozwiń

Opis oferty

ŻYWIEC - spokojna lokalizacja, dobra komunikacja wygodną drogą asfaltową z centrum miasta jak i z drogami wylotowymi.
Lokale użytkowe przeznaczone na cele usługowe o pow. ok. 155 mkw położone na parterze w 2-piętrowym budynku. 
Własne bezpłatne miejsca parkingowe na 8 samochodów.
Pomieszczenia są klimatyzowane i wentylowane.
Wyposażone są we wszystkie media.
Monitoring wizyjny budynku i parkingu.
Budynek z zewnątrz odnowiony i ocieplony.

Pomieszczenia są w trakcie przebudowy i będą dostępne od połowy października 2025 roku!
Możliwość dowolnej zmiany konfiguracji pomieszczeń i dostosowania do potrzeb klienta.

Przykładowe przeznaczenie pomieszczeń:

  1. Studio fitness – pilates, joga, medytacje, relaks, ćwiczenia oddechowe
  2. Studio taneczne
  3. Studio masażu i fizjoterapii + SPA
  4. Studio modelowania figury
  5. Salon urody premium /fryzjer, paznokcie/
  6. Przestrzeń do warsztatów kreatywnych – np. malowania czy rękodzieła, z miejscem na siedzenie na podłodze.
  7. Przestrzeń do mindfulness lub terapii grupowej – spokojne otoczenie wspiera sesje psychologiczne lub coachingowe.
  8. Studio fotograficzne

 

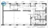
ROZKŁAD (przykładowe możliwości wykorzystania):  sala np. fitness 64,38 m2, zaplecze socjalne 5,68 m2, pomieszczenie porządkowe 4,21 m2, toaleta dla pracowników 3,79 m2, toaleta dla klientów 3,76 m2, strefa wellness z np. sauną 10,45 m2, gabinet kosmetyczny 11,45 m2, korytarz 17,40 m2, wiatrołap 1,53 m2, recepcja 14,51 m2, szatnia 8,96 m2 (przygotowana na 15 szafek), kotłownia 7,39 m2

OPŁATY: CENA NAJMU: 7700 zł/m-c  + VAT+ opłaty + kaucja (do ustalenia), 
- opłaty eksploatacyjne: prąd, woda, ogrzewanie - niezależne liczniki, opłata za wywóz śmieci

DANE DODATKOWE:
-
 internet - światłowód
- wysokość pomieszczeń: 2,70 m
- okna -  PCV, kraty w oknach
- ściany - malowane
- podłoga -  płytki
- WC - płytki, 2 oddzielne sanitariaty (na życzenie najemcy łazienka może być odnowiona)
- ogrzewanie - własne centralne

Bardzo dobre miejsce na działalność - dogodny dojazd z centrum miasta jak i drogi szybkiego ruchu Żywiec - Bielsko-Biała.

Napisz do nas

Zapraszamy do kontaktu!

Współpraca z nami opiera się na zasadzie wygrana - wygrana.

Działamy od ponad 30 lat na lokalnym rynku nieruchomości. Dzięki specjalizacji i dobrej znajomości rynku pomogliśmy już bardzo wielu ludziom.

Wyślij nam wiadomość wypełniając formularz.

Podaj adres nieruchomości lub preferowaną lokalizację,  powierzchnie oraz oczekiwania co do ceny i terminu realizacji.

Skontaktujemy się z Tobą niezwłocznie i porozmawiamy o możliwościach współpracy i jej formie.

    Arrow right

    Wybierz temat

    • Sprzedaż domu
    • Zakup domu
    • Sprzedaż mieszkania
    • Zakup mieszkania
    • Sprzedaż działki
    • Zakup działki
    • Inne
    Mobile icon Zadzwoń Pen icon Wiadomość